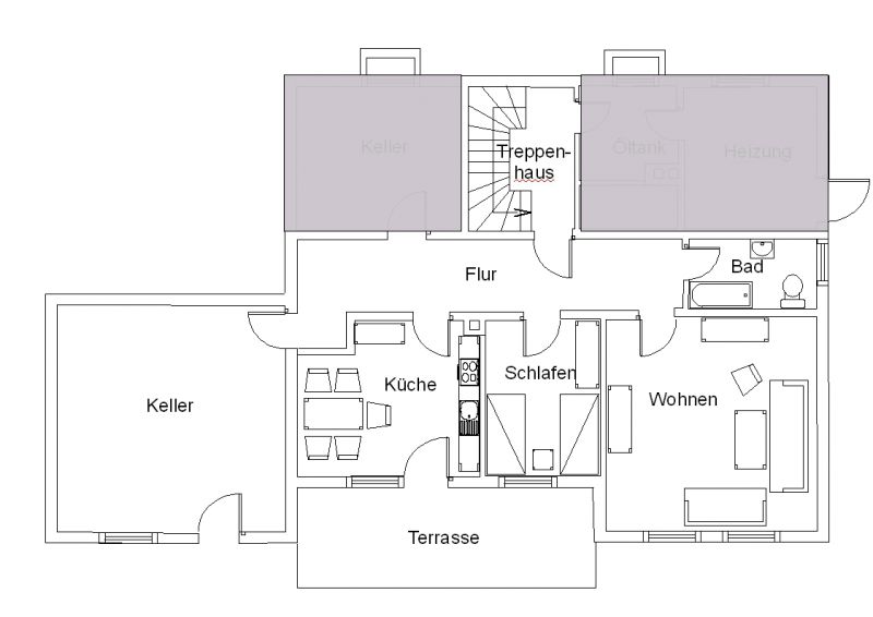
Grundriss Untergeschoss