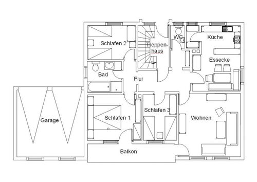
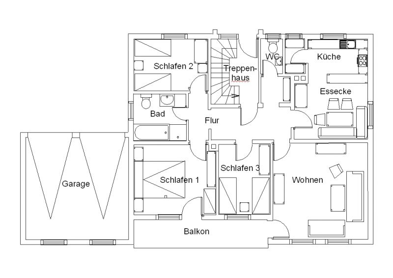
Grundriss Erdgeschoss